Margaret Fernandez
My Counselor HomeFinder Join Sign In

2400 Simply Living Lane, Hudson, WI 54016

18 Total Photos [Click to View All]

Listed By

Agency Name: Divine Real Estate Group
Agency Phone: 715-781-5968

Shown By

Agent Name: Margaret Fernandez
Agent Phone: (763) 221-4841
Agency Title: Counselor Realty

IDX logo

Property Description

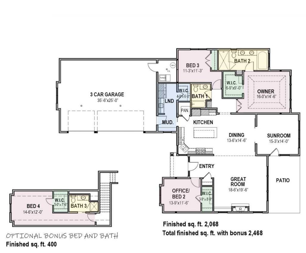
Explore the Princeton floor plan, which seamlessly combines contemporary design with everyday convenience in the prestigious Park Place Village. This opportunity allows you to acquire a distinguished residence in this tranquil, low-maintenance community. With 2,300 square feet of one-level living space, the Princeton floor plan achieves an ideal equilibrium between sophistication and functionality. This floor plan stands out with its high ceilings, abundant natural light, and thoughtful layout. The open-concept design ensures that every corner of the home is inviting and ready for both relaxing and entertaining.The living room has 11-foot ceilings and a warm gas fireplace, ideal for relaxing or entertaining. Andersen 400 Series windows provide natural light and views of the private lot backs up to a tree lined bluff, creating a tranquil atmosphere. The adjoining gourmet kitchen includes premium stainless-steel appliances, bespoke cabinetry, and a spacious central island, suitable for both meal preparation and informal dining. The sunroom provides a serene environment to appreciate the private back yard while enjoying abundant natural light, making it an excellent space for calm mornings or hosting guests.The primary suite includes a tray ceiling and an expansive layout that connects to an ensuite bathroom. The bathroom features a soaking tub, a separate walk-in shower, and dual vanities. A large walk-in closet provides ample storage space.The property includes two additional bedrooms that can be used for family members, guests, or as a home office. There is also a second full bathroom. Additionally, this Princeton features an optional bonus room above the garage, which includes an extra bedroom and a ¾ bath.The property features a fully finished and heated three-car garage, offering ample storage and vehicle space. With HOA dues of only $195 per month, residents can enjoy a low-maintenance lifestyle that includes lawn care, irrigation maintenance, and snow removal services, allowing for more time to appreciate the nearby amenities.Park Place Village is conveniently located near parks, walking trails, and the St. Croix River. Downtown Hudson offers shopping, dining, and entertainment. It's also close to the Twin Cities for a mix of suburban peace and urban convenience.**Other floor plans available ? stop by for a tour**Model Location - 2225 Sharon Lane, Hudson, WI 54016Model Hours - M-F 10am-4pm / Sat & Sun 11am-3pm

2400 Simply Living Lane | MLS# 7011000

This single family home located at 2400 Simply Living Lane, Hudson, WI 54016 is currently listed for sale with an asking price of $874,900. This property was built in 2025 and has 4 bedrooms and 3 full baths with 2708 sq. ft. Simply Living Lane is located in the Park Place Village subdivision within the Hudson school district. Search Park Place Village real estate on mfernandez.counselorrealty.com today.

Property Features

Property Type: Residential - Single Family
Basement: None
Cooling: Central Air
Fireplaces: 1
Fuel Type: Natural Gas
Garage: 3 car attached
Heating: Forced Air, Humidifier, In-Floor Heating
Lot Size: 0.24 Acres
Roof Type: Asphalt
Stories: 1.5
Taxes: $0
Year Built: 2025

Feature Descriptions

Accessibility: Doors 36+, Hallways 42+, Door Lever Handles, No Stairs External, Roll-In Shower, Soaking Tub
Additional Living Info.: 3 BR on One Level, All Living Facilities on One Level, Main Floor Primary, Main Floor Laundry, Primary Bdr Suite
Appliances: Cooktop, Dishwasher, Disposal, Electric Water Heater, Exhaust Fan, Humidifier, Microwave, Refrigerator, Stainless Steel Appliances, Wall Oven
Bath: Double Sink, Bathroom Ensuite, Full Primary, Private Primary, Main Floor Full Bath, Separate Tub & Shower, Upper Level 3/4 Bath, Walk-In Shower Stall
Bathrooms 3/4: 1
Bathrooms Full: 2
Days on Site: 49
Dining: Breakfast Bar, Informal Dining Room, Kitchen/Dining Room
Fireplace: Gas, Living Room
Foundation Size: 2300
HOA Fee: $195/ Monthly
Lot: Cleared, Property Adjoins Public Land, Sod Included in Price, Tree Coverage - Light, Underground Utilities
Lot Dimensions: 70x145
Parcel#: TBD
Parking: Attached Garage, Asphalt, Floor Drain, Finished Garage, Garage Door Opener, Heated Garage, Insulated Garage
Sewer: City Sewer/Connected
Water: City Water/Connected

Room Sizes

Dining Room: 14.5x13.5
Bedroom: 16x14.5
Bedroom 4: 12.5x12
Foyer: 8x7
Kitchen: 14.5x12.5
Laundry: 10x6
Living Room: 19.5x18.5
Patio: 10x20
Bedroom 2: 14x11.5
Sun Room: 15x14.5
Bedroom 3: 11x11
Walk-In Closet: 9x7

Local Schools

School District: Hudson

Estimate Your Payment

Estimated Payment

$ 4,911.76 per month $4,656.59 Principal & Interest $0.00 Property Tax (data not provided by mls) $255.18 Homeowner's Insurance

Change Payment Information

%
years/fixed
yearly
yearly (est.)
(Payments are an estimate and may vary by lender)

Near By

Demographics

Login to My Homefinder

Pixel